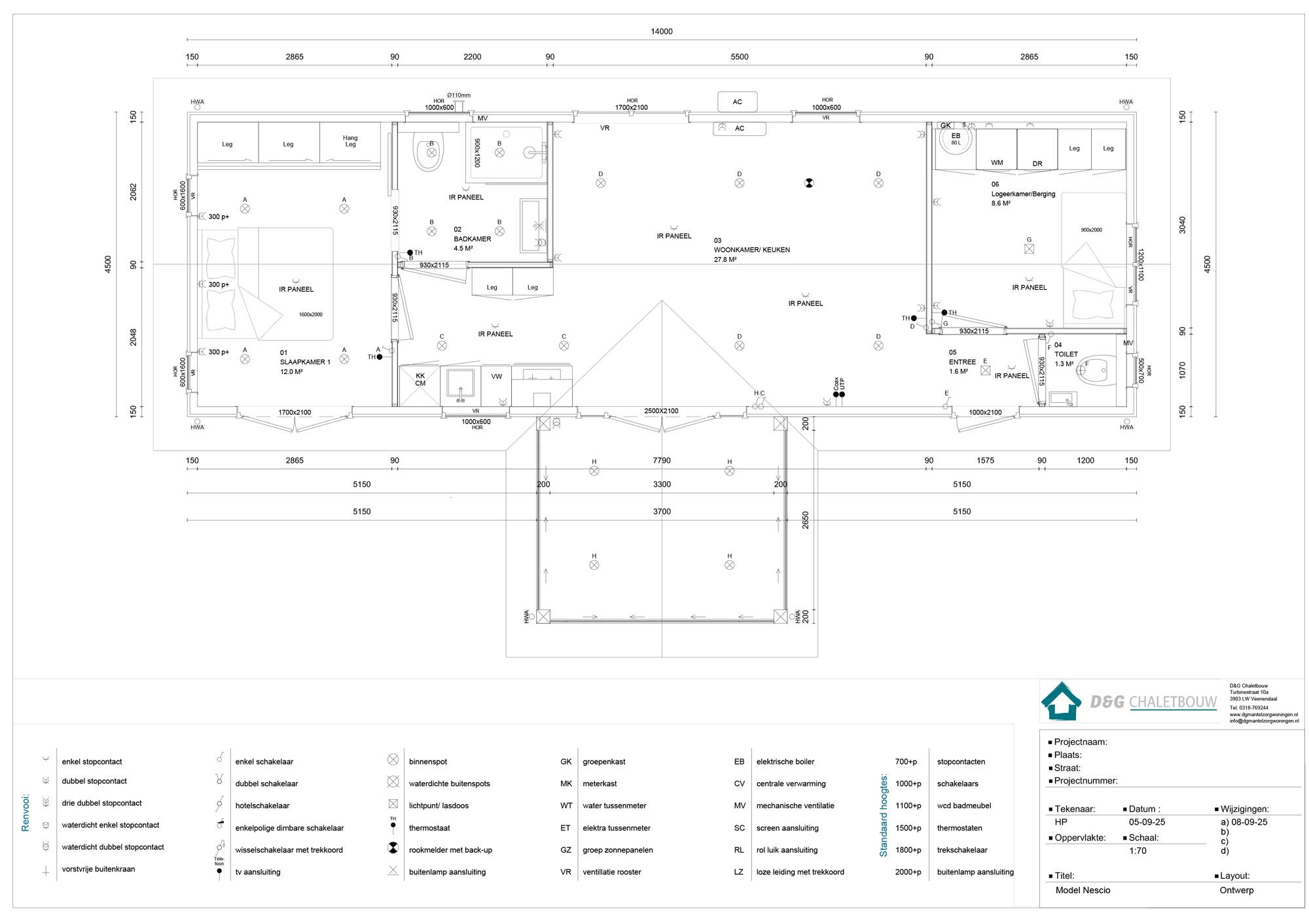
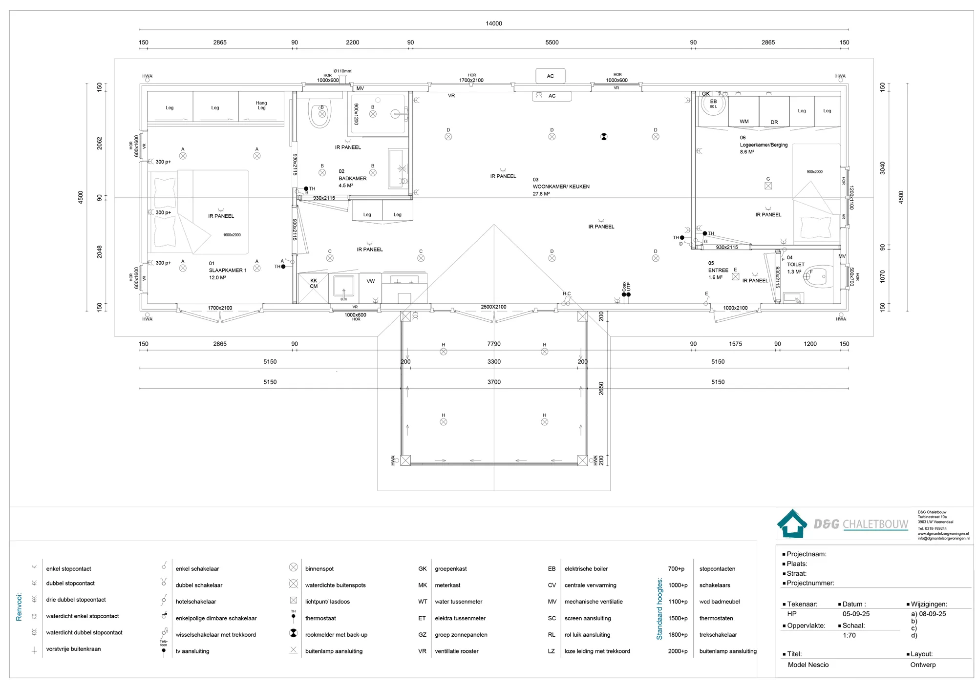
Nescio – model 1
Model: Nescio – model 1 (voorraadmodel)
Afmetingen (lxb): 14.00 x 4.50 meter + serre van 3.70 x 2.65 meter
Oppervlakte: 63 m² + serre van ca. 10 m²
Prijs: €134.800,- incl. BTW, transport en plaatsen*
Specificaties
- Ruime keuze in opstellingen en afwerking.
- Standaard voorzien van hoogwaardige isolatie.
- Stijlvol chalet met zadeldak en veel lichtinval door de grote raampartijen en ruime serre (afm. 3.70 x 2.65 meter)
- Luxe keuken voorzien van diverse inbouwapparatuur waaronder een volledig geïntegreerde vaatwasser.
- Luxe badkamer voorzien van ruime inloopdouche, toilet en wastafelmeubel. De wanden zijn afgewerkt met onderhoudsvriendelijke materialen.
- Ruime 1e slaapkamer (afm. 286,5 x 450 cm) met 3 hang- / legkasten en directe toegang tot de badkamer.
- 2e slaapkamer / berging: afm. 286,5 x 304 cm.
- 2e toilet.
- Binnenwanden bekleed met glasvliesbehang, gesaust in de kleur wit (RAL9010).
- Ventilatieroosters en matglas waar aangegeven.
- Onderhoudsarm exterieur.
- Verwarming d.m.v. infraroodpanelen.
*Met uitzondering op plaatsing met telekraan en op de Waddeneilanden.
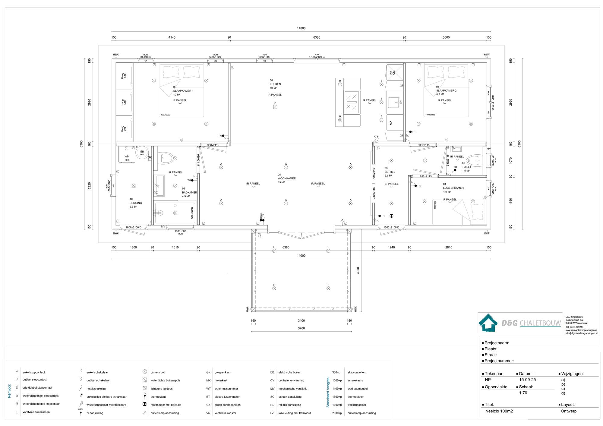
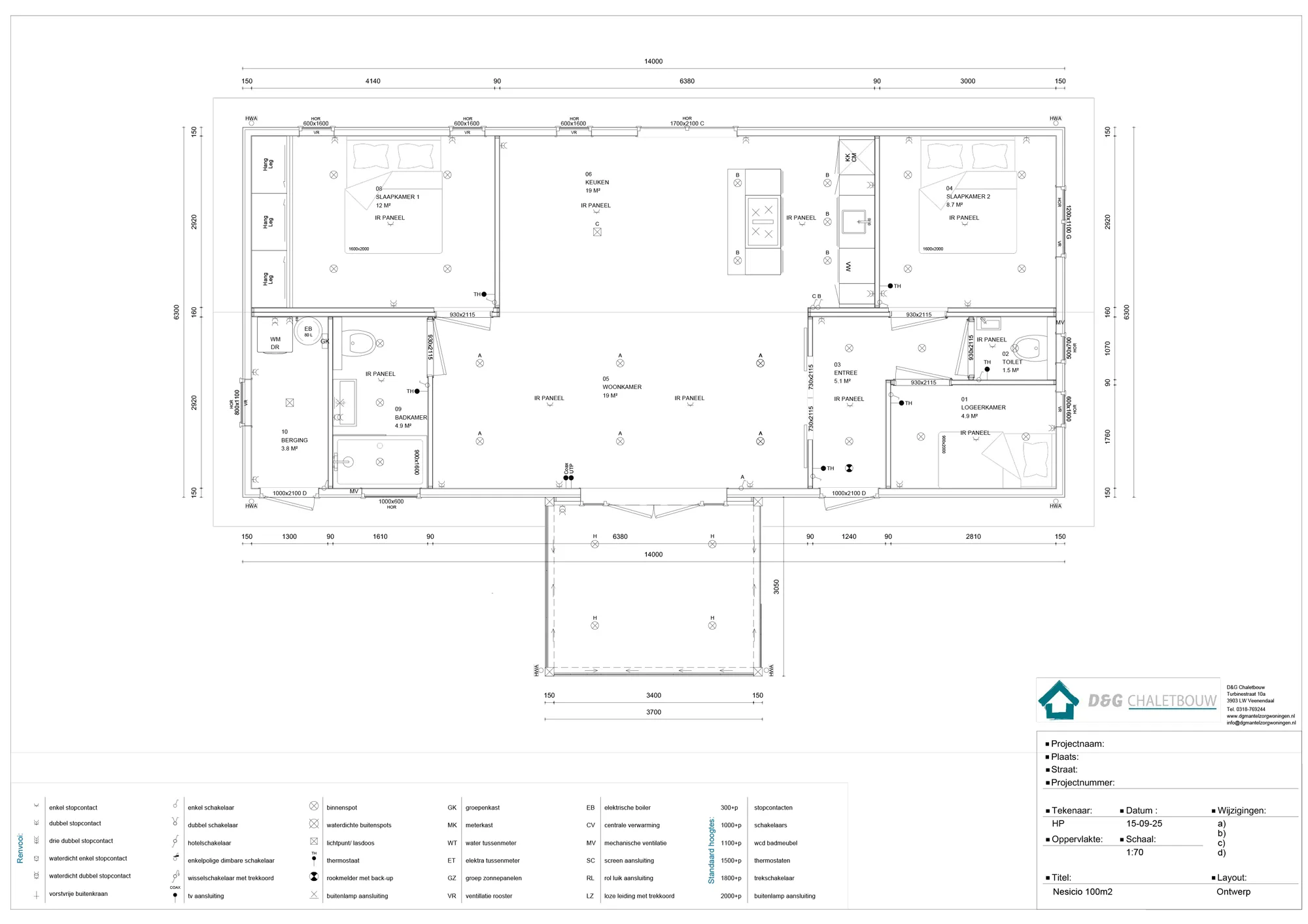
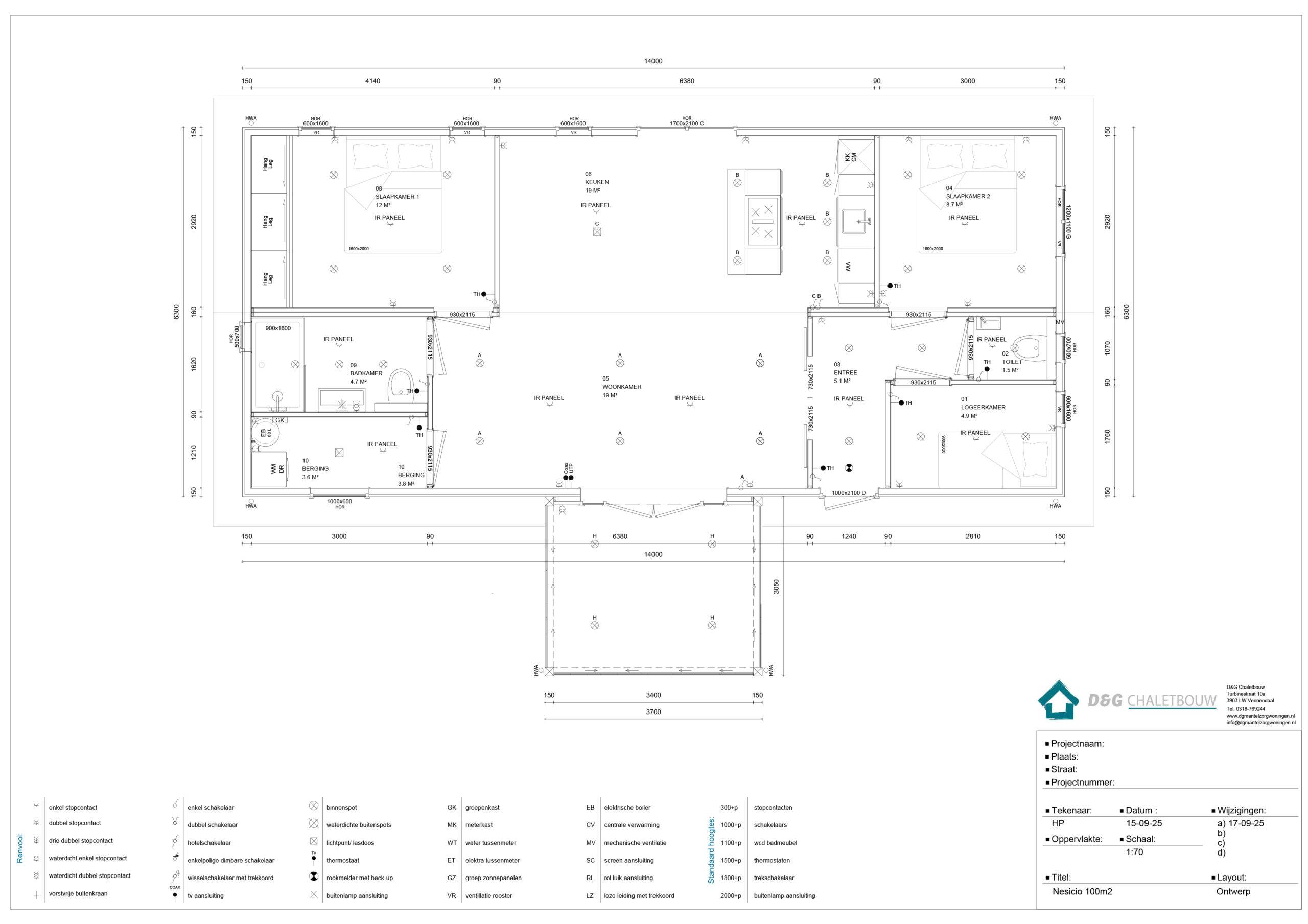
Nescio – model 2
Model: Nescio – model 2
Afmetingen (lxb): 14.00 x 6.30 meter + serre van 3.70 x 3.05 meter
Oppervlakte: ca. 88 m² + serre van ca. 11 m²
Prijs: prijs op aanvraag incl. BTW, transport en plaatsen*
Specificaties
- Ruime keuze in opstellingen en afwerking.
- Standaard voorzien van hoogwaardige isolatie.
- Stijlvol chalet met zadeldak en veel lichtinval door de grote raampartijen en ruime serre (afm. 3.70 x 3.05 meter)
- Luxe keuken voorzien van kookeiland en diverse inbouwapparatuur waaronder een volledig geïntegreerde vaatwasser.
- Luxe badkamer voorzien van ruime inloopdouche, toilet en wastafelmeubel. De wanden zijn afgewerkt met onderhoudsvriendelijke materialen.
- Ruime 1e slaapkamer (afm. 414 x 292 cm) met 3 hang- / legkasten.
- 2e slaapkamer: afm. 300 x 292 cm.
- 3e slaapkamer: afm. 281 x 176 cm.
- Berging: afm. 130 x 292 cm t.b.v. technische installatie.
- 2e toilet.
- Binnenwanden bekleed met glasvliesbehang, gesaust in de kleur wit (RAL9010).
- Ventilatieroosters en matglas waar aangegeven.
- Onderhoudsarm exterieur.
- Verwarming d.m.v. infraroodpanelen.
*Met uitzondering op plaatsing met telekraan en op de Waddeneilanden.
Offerte aanvragen
Bent u benieuwd wat wij voor u kunnen betekenen? Of wilt u gewoon eens met ons van gedachten wisselen over de mogelijkheden? Wij adviseren u graag. Als u het formulier zo volledig mogelijk invult nemen wij binnen 24 uur contact met u op.
"*" geeft vereiste velden aan
















