Madina – model 1
Model: Madina – model 1
Afmetingen (lxb): 9.50 x 4.20 meter
Oppervlakte: ca. 40 m²
Prijs: prijs op aanvraag incl. BTW, transport en plaatsen*
Specificaties
- Ruime keuze in opstellingen en afwerking.
- Standaard voorzien van hoogwaardige isolatie.
- Modern en speels chalet met een gebroken kap voorzien van openslaande deuren in de ruime woonkamer.
- Entreeruimte met toegang tot de slaapkamer, keuken en woonkamer.
- Compacte keuken voorzien van diverse inbouwapparatuur.
- Badkamer voorzien van ruime inloopdouche, toilet en wastafelmeubel. De wanden zijn afgewerkt met onderhoudsvriendelijke materialen.
- Ruime slaapkamer (afm. 300 x 390 cm) met directe toegang tot de badkamer.
- Ventilatieroosters en matglas waar aangegeven.
- Onderhoudsarm exterieur.
- Verwarming d.m.v. infraroodpanelen.
*Met uitzondering op plaatsing met telekraan en op de Waddeneilanden.
Madina – model 2
Model: Madina – model 2
Afmetingen (lxb): 11.00 x 4.50 meter
Oppervlakte: ca. 50 m²
Prijs: prijs op aanvraag incl. BTW, transport en plaatsen*
Specificaties
- Ruime keuze in opstellingen en afwerking.
- Standaard voorzien van hoogwaardige isolatie.
- Modern en speels chalet met een gebroken kap voorzien van openslaande deuren in de ruime woonkamer.
- Entreeruimte met toegang tot 1e slaapkamer, keuken en woonkamer.
- Compacte keuken voorzien van diverse inbouwapparatuur.
- Badkamer voorzien van ruime inloopdouche, toilet en wastafelmeubel. De wanden zijn afgewerkt met onderhoudsvriendelijke materialen.
- Ruime slaapkamer (afm. 410 x 271 cm) met een 3-deurs inbouwkastenwand en directe toegang tot de badkamer.
- Logeerkamer: afm. 170 x 200 cm.
- Ventilatieroosters en matglas waar aangegeven.
- Onderhoudsarm exterieur.
- Verwarming d.m.v. infraroodpanelen.
*Met uitzondering op plaatsing met telekraan en op de Waddeneilanden.
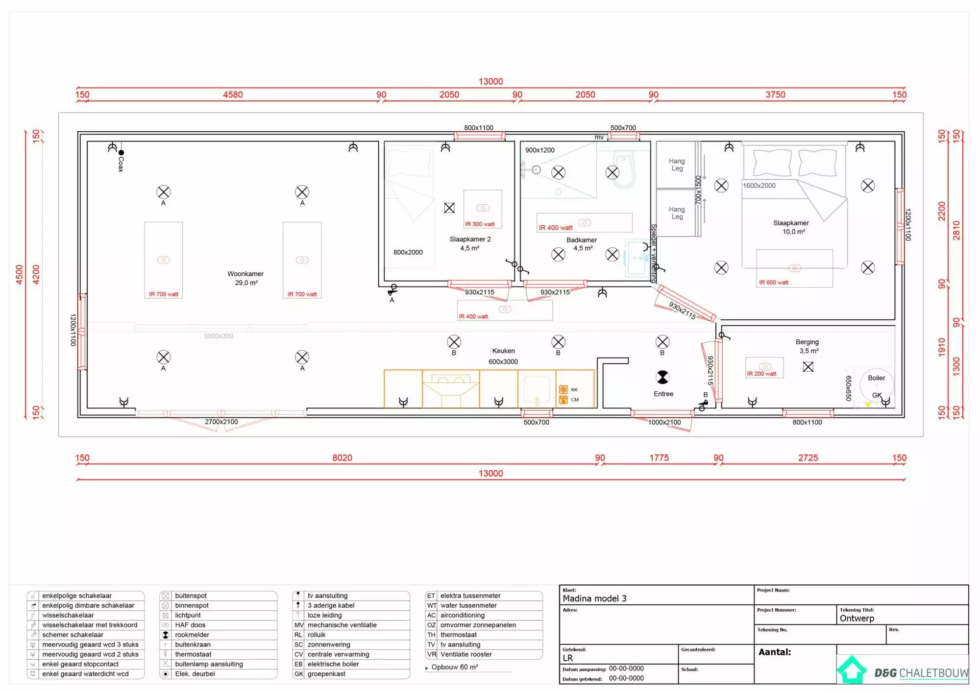
Madina – model 3
Model: Madina – model 3
Afmetingen (lxb): 13.00 x 4.50 meter
Oppervlakte: ca. 59 m²
Prijs: prijs op aanvraag incl. BTW, transport en plaatsen*
Specificaties
- Ruime keuze in opstellingen en afwerking.
- Standaard voorzien van hoogwaardige isolatie.
- Modern en speels chalet met een gebroken kap voorzien van openslaande deuren in de ruime woonkamer.
- Entreeruimte met toegang tot berging, 1e slaapkamer, badkamer, logeerkamer, keuken en woonkamer.
- Ruime keuken voorzien van diverse inbouwapparatuur waaronder een volledig geïntegreerde vaatwasser.
- Badkamer voorzien van ruime inloopdouche, toilet en wastafelmeubel. De wanden zijn afgewerkt met onderhoudsvriendelijke materialen.
- Ruime slaapkamer (afm. 375 x 281 cm) met een 2-deurs kast.
- Logeerkamer: afm. 205 x 220 cm.
- Berging met technische installatie.
- Ventilatieroosters en matglas waar aangegeven.
- Onderhoudsarm exterieur.
- Verwarming d.m.v. infraroodpanelen.
*Met uitzondering op plaatsing met telekraan en op de Waddeneilanden.
Madina – model 4
Model: Madina – model 4
Afmetingen (lxb): 13.00 x 5.70 meter
Oppervlakte: ca. 74 m²
Prijs: prijs op aanvraag incl. BTW, transport en plaatsen*
Specificaties
- Ruime keuze in opstellingen en afwerking.
- Standaard voorzien van hoogwaardige isolatie.
- Modern en speels chalet met een gebroken kap voorzien van openslaande deuren in de ruime woonkamer.
- Entreeruimte met toegang tot 1e slaapkamer, logeerkamer, toilet, keuken en woonkamer.
- Ruime keuken voorzien van diverse inbouwapparatuur waaronder een volledig geïntegreerde vaatwasser.
- Badkamer voorzien van ruime inloopdouche, toilet en wastafelmeubel. De wanden zijn afgewerkt met onderhoudsvriendelijke materialen.
- 2e toilet.
- Ruime slaapkamer (afm. 385 x 287 cm) met een 3-delige inbouwkast en directe toegang tot de badkamer.
- Logeerkamer: afm. 164 x 265 cm met kast t.b.v. technische installatie.
- Ventilatieroosters en matglas waar aangegeven.
- Onderhoudsarm exterieur.
- Verwarming d.m.v. infraroodpanelen.
*Met uitzondering op plaatsing met telekraan en op de Waddeneilanden.
Offerte aanvragen
Bent u benieuwd wat wij voor u kunnen betekenen? Of wilt u gewoon eens met ons van gedachten wisselen over de mogelijkheden? Wij adviseren u graag. Als u het formulier zo volledig mogelijk invult nemen wij binnen 24 uur contact met u op.
"*" geeft vereiste velden aan















