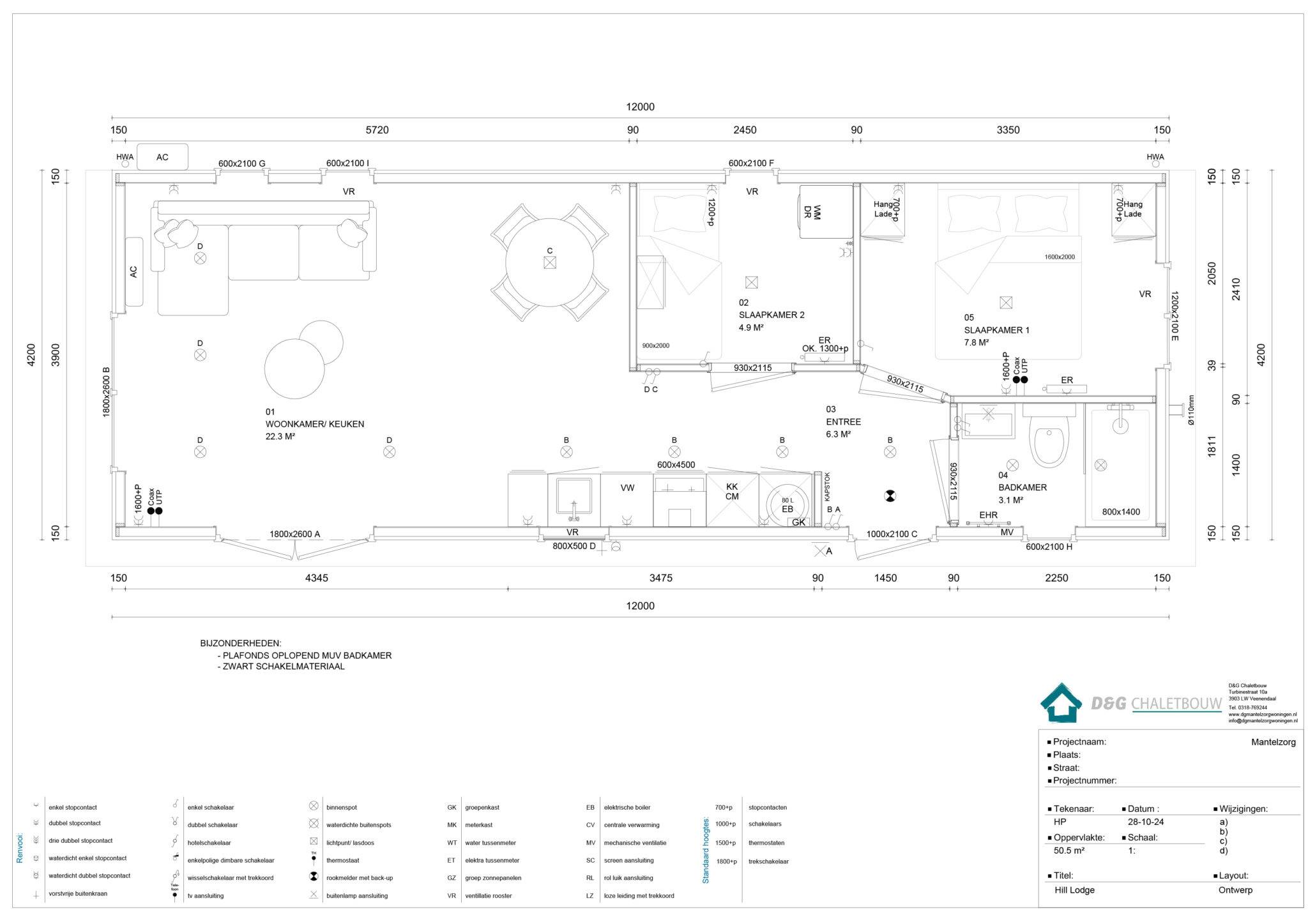
Hill Lodge model
Model: Hill Lodge model
Afmetingen (lxb): 12.00 x 4.20 Â meter
Oppervlakte: ca. 51 m²
Prijs: prijs op aanvraag incl. BTW, transport en plaatsen*
Specificaties
- Ruime keuze in opstellingen en afwerking en geheel gasloos uit te voeren.
- Standaard voorzien van hoogwaardige isolatie.
- Voorzien van lessenaarsdak voor een ruimtelijke gevoel en een moderne uitstraling en raampartijen tot aan straatniveau.
- Ruime keuken voorzien van diverse inbouwapparatuur.
- Badkamer voorzien van ruime inloopdouche, toilet en wastafelmeubel. De wanden zijn afgewerkt met onderhoudsvriendelijke materialen.
- Ruime 1e slaapkamer (afm. 320 x 241 cm) met 2 hang / legkasten.
- 2e slaapkamer: afm. 260 x 206 cm.
- Onderhoudsarm exterieur.
- Verwarming d.m.v. elektrische radiatoren en een airco.












